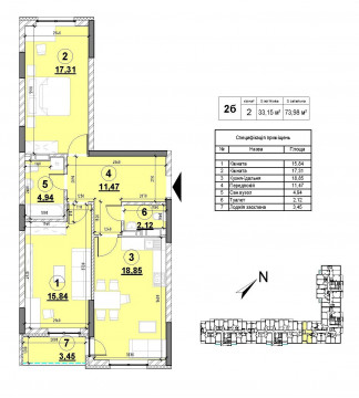
| 1 found | Code 644720 | 2,595,000 UAH 2-rooms apt., 73.98 m², 12/26 floor
Kiev, Vozduhoflotskiy prosp. 56, district Solomenskiy Ukraine/Kiev region/Kiev/sale
Предлогаю Вашему вниманию замечательную 2 комнатную квартиру в новом доме ЖК Okland, 3. Дом расположен в тихом районе Киева по адресу: Воздухофлотский просп., 56,3, недалеко от м. Вокзальная, ориентир - Чоколовка. Размеры - 73.98/33/19 м2.; на 12 етаже.
У квартирі встановлені металопластикові вікна з енергозберігаючими склопакетами. Опалення - централізоване.
Територія ЖК Okland (OK'land) закрита з відеоспостереженням. Для комфорту майбутніх мешканців будується підземний паркінг, дитячий та спортивний майданчик, зони відпочинку.
Інфраструктура району розвинена і різноманітна. Поруч з комплексом знаходяться супермаркети: Novus, Billa та Фуршет. Ваші діти зможуть відвідувати дитячі садки: №146, №191, №376, «Слов'яночка» і «Родзинка», а також школи: №64, №69, №376. Відправитися за покупками можна в ТЦ «Аркадія», а відпочити й смачно повечеряти - в ресторані «Чайхона базар», або «Чорноморці» на Преображенській.
Найближчі станції метро: Вокзальна (20 хвилин на громадському транспорті), Шулявська (30 хвилин на громадському транспорті). До центру міста на авто можна дістатися за 15 хвилин. Завдяки Повітрофлотському проспекту, біля комплексу дуже хороша транспортна розв'язка more
| |
|
|
10262 |