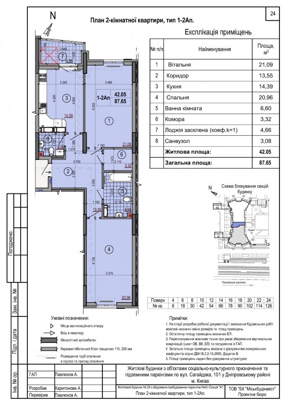
3-rooms apt., 87.5 m², 22/25 floor2,740,000 UAHKiev, Dneprovskiy, Stepana Sagaydaka ul., 29 • On map Никольская Слободка Rooms3 separate
Area87.5 m²
Living42 m²
Kitchen14 m²
Floor22 from 25
Лучшее предложение! 87.5м.кв Русановская Гавань м.Левобережная Степана Сагайдака ул., 29Предлогаю Вашему вниманию видовую 3 к. квартиру Дом утеплен минватой, квартира без ремонта от строителя. Рядом есть все необходимое для комфортной жизни: супермаркеты, магазины, спорт-клуб, остановки, на выбор садики, школа, поликлиника ст.м. Левобережная. Отличная транспортая развязка. в новом доме Русановская Гавань, . Квартира расположена в замечательном районе Киева по адресу: , 29 недалеко от м. Левобережная, ориентир - Никольская Слободка. Площадь квартиры - 87.5/42/14 м. кв.; на 22 етаже. Сдача дома - введен Object typeSeparate apartment Building typeNew building Add Id480671 Add date17.02.2021 Renewal date02.10.2021 Share 2,740,000 UAH Agent: Сергей Message |
|










