|
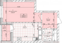
Rooms1
Area38 m²
Living21 m²
Kitchen10 m²
Floor20 from 21
Продам 1-к квартиру в ЖК Бережанский на Оболони. Переуступка!Лучшая цена для этого комплекса, ниже цены застройщика. ЖК Бережанский Оболонский район, ул. Николая Гулака 3, 3 линия, надежный застройщик ГАЛЖИЛОБУД. Окна на Пуще Водицу. Установлены счетчики на воду и свет, радиаторы отопления, платисиковые окна, своя котельня. Стены – чистовая стяжка, пол – черновая стяжка, розводка електроенергии до дверей. Есть подземный паркинг, хорошая транспортная развязка (до м.Минская или м.Г.Днепра 15мин.). Монолитно-каркасная конструкция дома- керам блок, внешние стены утеплены мин. ватой, висота потолков – 2, 70м. Цени ниже застройщика. Сдача дома 3-й квартал 2020 года. Надежный застройщик ГАЛЖитлобуд. В квартире проведены черновые работы: стяжка на полу, штукатурка на стенах и разводка на счетчики, металлопластиковые окна и металлические двери. Спортивная, игровая площадка. В близости парка Бережанский (в 2 минутах ходьбы). ЖК находится в развитом районе: детские садики: №527, «Ольвия», школы: №29, №285. Медицина: аптеки: «Санос», «Доброго дня», лаборатория «Синево», центр первичной медико-санитарной помощи №2. Супермаркеты и торговые центры: «Фора», «АТБ», «Сильпо», «Поялрный». Развлечения: парк «Бережанський», «Radio Bar», ресторан «Мансарда», кальянная «LIMA», «Dream Town», а также оздоровительный центр «Crystal Fitness». Рядом с домом расположена остановка общественного транспорта. Object typeSeparate apartment Add Id509916 Add date21.10.2019 Renewal date08.07.2022 Share 55,000 $ Agent: Алексей Владимирович Agency 'Киевские квартиры' Message |
|























