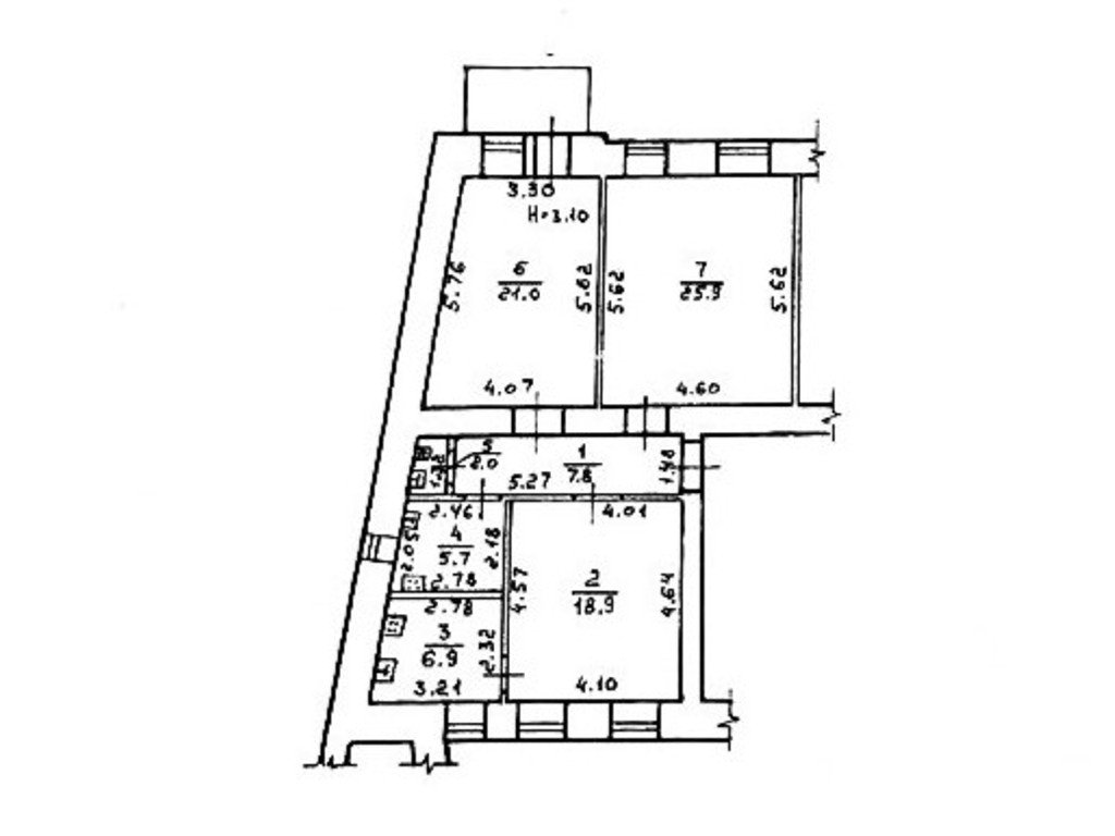
3-rooms apt., 89 m², 2/3 floor65,000 USD • 3% agent-feeOdessa, Primorskiy, Bolshaya Arnautskaya, 125 • On map Старопортофранковская Rooms3 separate
Area89 m²
Living66 m²
Kitchen14 m²
Floor2 from 3
Арнаутская: продам перспективную 3к квартиру в красивом доме в центре!Большая Арнаутская / Старопортофранковская, продам квартиру, расположенную на 2 этаже красивого и крепкого 3-ехэтажного старинного дома, 89/66/7 кв. м, три шикарные раздельные комнаты (26 + 21 + 19 кв. м), кухня с возможностью увеличения до 14 кв. м, балкон, сан. узел тоже можно увеличить до 14 кв. м превратив в его в красивейшую ванную комнату, высота потолков 3,2 метра, правильная и удобная планировка, автономное отопление и горячая вода (АГВ и колонка), ухоженная фасадная парадная с мраморной лестницей, просторная и очень перспективная квартира под ремонт и реализацию Ваших фантазий и идей в отличном районе в самом центре города! BalconyYes, 1 LoggiaNo Windows overlookThe courtyard, The street Separate bathroomNo Combined bathroomYes, 1 RenovationWithout renovation HeatingAutonomous (Gas boiler) Hot water supplyGas boiler Garage or parkingNo Object typeSeparate apartment Project typeBelgian RampNo Add Id700984 Add date25.02.2026 Renewal date14.04.2026 Share 65,000 $ Agent: Алексей Красотов Agency '"Александр-N"' Message |
|



































