House, 130 m², 2 floors, 4 rooms, 3 bedrooms, 2.7 acres225,000 USDOdessa, Kievskiy, Gellera, 001 • On map Rooms4
Bedrooms3
Area130 m²
Land2.7 acres
Floors2
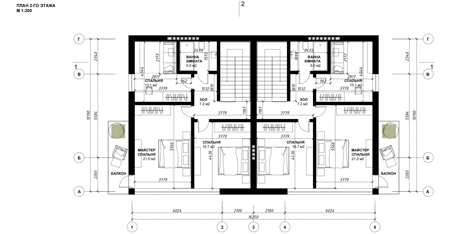
Новый дом- дуплекс, Б Фонтан закрытая территория09069 3 новых отдельно стоящих дома на закрытой охраняемой территории -️ Дома расположены в престижном районе -️ Удобный доступ к развитой инфраструктуре -️ Жильё нового поколения! -️ Премиальное качество строительства! -️ Современный дизайн, продуманная планировка-создают идеальные условия для комфортной жизни! - Участок 2.7 сотки - Общая площадь 130 кв. м., подвал 60 кв. м. - Кухня-гостиная-студия, 3 спальни, 3 санузла, гардеробная, терраса Характеристики дуплекса - Высота этажей 3.2 м - Стены кирпич - Фасад комбинированный Травертин +Композит. - Крыша эксплуатируемая мембрана. - Утепление Стен базальтовая вата 50 мм - Окна двойной стеклопакет (Профиль Aluplast 2000) Характеристики фундамента - Фундамент монолитно каркасный - Утепление Фундамента экструдированный пенополистирол + гидроизоляция Коммуникации - Газ - Электроснабжение 18 квт три фазы - Водоснабжение: артезианская скважина - Канализация городская Object typeHouse Add Id742103 Add date31.03.2026 Renewal date17.04.2026 Share 225,000 $ Agency 'RentMar' Message |
|



















