House, 250 m², 2 floors, 4 rooms, 3 bedrooms, 4 acres400,000 USDOdessa, Kievskiy, Gellera, 001 • On map Rooms4
Bedrooms3
Area250 m²
Land4 acres
Floors2
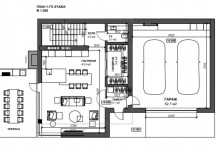
Новый дом Б Фонтан закрытая территория09068 ️ 3 новых отдельно стоящих дома на закрытой охраняемой территории -️ Дома расположены в престижном районе -️ Удобный доступ к развитой инфраструктуре -️ Жильё нового поколения! -️ Премиальное качество строительства! -️ Современный дизайн, продуманная планировка-создают идеальные условия для комфортной жизни! Участок: 4 сотки Общая площадь 250 кв. м., подвал 55 кв. м.
Характеристики дома - Высота 1-го этажа 3.6 м Высота 2-го этажа 3.4 м - Стены кирпич - Фасад комбинированный Травертин +Композит. - Крыша эксплуатируемая мембрана. - Утепление Стен базальтовая вата 50 мм - Окна двойной стеклопакет (Профиль Aluplast 2000) Характеристики фундамента - Фундамент монолитно каркасный - Утепление Фундамента экструдированный пенополистирол + гидроизоляция Коммуникации - Газ - Электроснабжение 18 квт три фазы - Водоснабжение: артезианская скважина - Канализация городская Object typeHouse Add Id742104 Add date31.03.2026 Renewal date17.04.2026 Share 400,000 $ Agency 'RentMar' Message |
|



















