House, 272 m², 3 floors, 6 rooms, 5 bedrooms, 3 acres320,000 USD • 3% agent-feeOdessa, Kievskiy, Garshina • On map 12 ст. Большого Фонтана Rooms6 separate
Bedrooms5
Area272 m²
Living165 m²
Kitchen27 m²
Land3 acres
Floors3
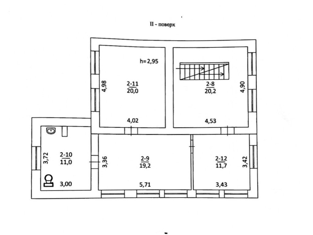
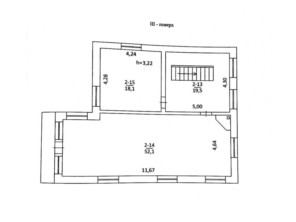
Гаршина: продам дом в великолепном районе у моря на 12 ст. Фонтана!Гаршина / Хрустальный пер., продам просторный и залитый солнечным светом современный дом в потрясающем районе возле ресторана «Reef» в нескольких минутах ходьбы дом моря на 12-й станции Большого Фонтана, 3 этажа, общая площадь 272 кв. м, 4 (5) спальни (20,5 + 20 + 18 + 12 кв. м), кухня-столовая (27 кв. м), мастер-спальня со своей гостиной и ванной комнатой, каминный зал (52 кв. м) на верхнем этаже с панорамной лоджией и действующим натуральным камином, великолепный вид на округу и даже на море, холл, сауна, две ванных комнаты с гидромассажной душевой кабиной и ванной-джакузи, небольшой бассейн-ванная и сауна, кондиционеры, автономные отопление и горячая вода (2-ухконтурный котел), городская канализация, свежий современный ремонт, ухоженный вымощенный плиткой двор с авторским фонтанчиком скульптора с мировым именем и местом для двух машин, земельный участок 3 сотки, приватизирован, уютный и престижный великолепный элитный район возле самого моря и лучших пляжей Одессы! Фасадный, обращающий на себя внимание дом вдоль активной улицы, который легко заметить - отличный вариант и для жизни, и под офис-представительство, медицинский центр или мини-гостиницу. Object typeHouse Add Id756828 Add date25.02.2026 Renewal date16.04.2026 Share 320,000 $ Agent: Алексей Красотов Agency '"Александр-N"' Message |
|

























































