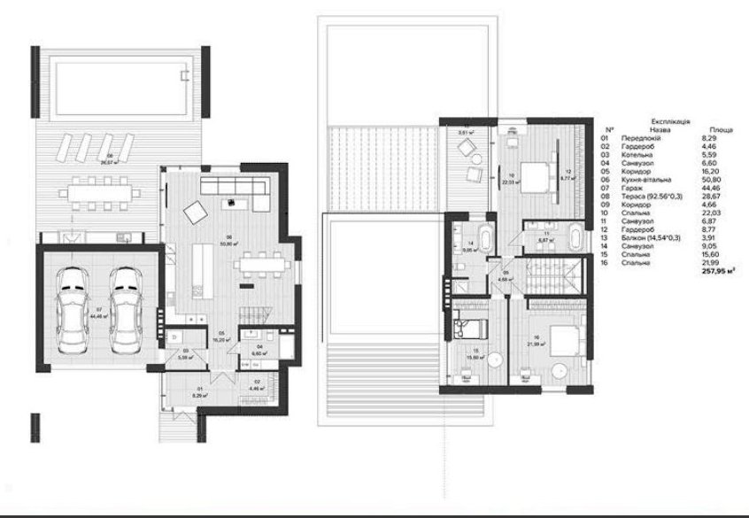
Котедж, 258 м², 2 поверхи, 3 кімнати, 12 сот.438 342 USD • 0% комісіяКиїв, Вышгородский, Обводной канал • На мапі Кімнат3 роздільні
Площа258 м²
Житлова111 м²
Кухня51 м²
Ділянка12 сот.
Поверхів2
Без комиссии! Дом, 258 м2 в коттеджном городке в Вышгородском р-не наДом, 258 м2 в коттеджном городке в Вышгородском р-не на Обводном канале. Закрытый коттеджный городок в Вышгородском районе в 10 минутах езды от Киева. На территории 42 домовладения для людей, которые ценят свою приватность! Охрана, видеонаблюдение. Площади домов разные: 175 кв.м., 200 кв.м, 258 кв.м, 300 кв.м, 365 кв.м, 460 кв.м. Все коттеджи с собственными земельными участками. На территории КГ ландшафтный дизайн, зеленые изгороди , пляж, пирсы для катеров, детские и спортивные площадки, детский сад, продуктовый магазин, бассейн, 2 ресторана, велосипедные дорожки, ангар для катеров, вертикальные теплицы. Окружен сосновым лесом и водой. Возможность без шлюзов доплыть до Киева за 15 минут. Спа-зона с баней. 2 скважины с дополнительной очисткой. Уникальное расположение в сосновом лесу на берегу Обводного канала и Киевского моря с выходом к Днепру и притоку Десны, где Вы сможете поставить свою яхту! В комплектацию дома входит фундаментная плита, стены из кирпича М125, вентилируемый фасад, алюминиевые окна, 20кВт электроэнергия. В планировке 3 спальни, большая кухня-гостинная со вторым светом, 2 балкона, терраса. Цена 1699 $/м2, земельный участок 12 соток. Строительство ведется. Возможна рассрочка и кредитование, 30% первый взнос. Стоимость 438 342$. Торг. Тип об'єктуКотедж Id оголошення450891 Оголошення додано11.11.2020 Оголошення оновлено06.03.2021 Поділитися 438 342 $ Жанна Повідомлення |










