Таунхаус, 850 м², 3 поверхи, 20 кімнат, 8 сот.940 000 USDКиїв, Голосеевский, Добрый Путь, 48 • На мапі Кімнат20
Площа850 м²
Житлова400 м²
Кухня100 м²
Ділянка8 сот.
Поверхів3
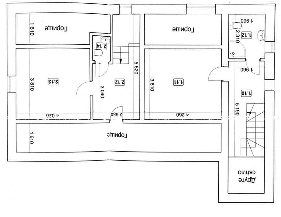
Комплекс из двух коттеджейОт собственника, доходное домовладение или клубный дом на 5 семей по ул Добрый путь, 48 и 48»А» в Киеве. Состоит из двух коттеджей общей пл. 850кв. м. Они включают 4 таунхауса, квартиру, гаражи на 6 авто и 200кв. м. складских помещений. Поскольку домовладение угловое, ко всем перечисленным объектам отдельные входы с улицы. У каждого свой дворик. Всё сдаётся в долгосрочную аренду. Месячный доход €5000. При стоимости продажи €800. доход с инвестиции составляет 8% годовых. Возможен обмен на доходную недвижимость в Испании (отель, пансионат, ресторан) На телефоне есть Ватсапп, Вайбер и Телеграмм. Тип об'єктуТаунхаус Id оголошення537985 Оголошення додано18.09.2021 Оголошення оновлено19.09.2021 Поділитися 940 000 $ Виктор Повідомлення |
















