Щасливе, Лесі Українки в, 4, район Ukraine/Kiev region/Schastlivoe/saleДо продажу пропонується комерційне приміщення вільного призначення.
Цокольний поверх, площа 71.6кв.м.
Приміщення під ремонтом.
Окремий вхід, зручне планування: підсобне приміщення, санвузол та просторий зал.
За рахунок просторої зали є можливість зробити перепланування під потреби свого бізнесу.
В приміщені зроблена гідроізоляція, розраховане місце під приточно-витяжну систему, закладена траса під кондиціонер, прокладений силовий кабель.
Комунікації: світло (30 кВт), водопостачання та водовідведення.
Приміщення знаходиться в новому вже обжитому ЖК "7я".
Щасливе в 7хв. від метро Бориспільська, Харківська, до міста Бориспіль 10хв. на авто.
В ЖК близько 800 квартир, відповідно гарне місце для ведення особисто бізнесу або інвестиція.
Пропозиція без комісії для покупця.
Перегляд по домовленості)
Код об'єкта-16070 ще | Київ, Сергія Колоса в, 131, район Соломенский Ukraine/Kiev region/Kiev/saleПросторий новий будинок в Києві, Солом'янському районі, мікрорайон Жуляни.
Виконаний з газоблоку, утеплений пінопластом, чудово утримує температуру, по принципу термоса.
Загальна площа складає 220 кв.м., земельна ділянка - 7 соток.
В будинку 4 спальні, велика вітальня 50 кв.м., санвузли на кожному поверсі, 2 гардеробні, топкова, та балкон. Функціональна та обладнана кухня зі всією необхідною технікою.
Виконано якісний ремонт, в будинку є все необхідне для комфортного проживання. Опалення електричне, встановлений бойлер на 100 літрів, централізоване водопостачання, септик, світло 16 кВт.
Будинок розташований в зручному місці, забезпечуючи зручний доступ до всіх необхідних об'єктів інфраструктури. До метро Теремки, Іподром, Виставковий центр всього до 3 км, а також в радіусі 1 км Столичний ринок, Метро, Епіцентр, ТРЦ Республіка. В 900-х метрів знаходяться нова державна школа, зупинки громадського транспорту, пошта, дитячі садки, житлові комплекси "Британський Квартал", "Нова Англія", "Паркленд", "Лікоград", "Венеція". Також в ближньому оточенні знаходяться Іпподром, парк ВДНГ, вулиці Ломоносова, Мейтуса, Вільямса, Конева, Максимовича, а також супермаркети "Новус", "Сільпо", "АТБ", "СпортЛайф".
Продаж без комісії для покупця.
Код об'єкта 14414 ще | Київ, Крещатик в, 23, район Печерский Ukraine/Kiev region/Kiev/longВашій увазі пропонується у довгострокову оренду 3 кімнатна квартира преміум класу в самому серці столиці за адресою: вул. Хрещатик, 23, Печерський район, метро Хрещатик 5 хвилин пішки.
8/11 поверх, загальна площа квартири - 75 кв м, з авторським ремонтом VIP рівня, вінтажними меблями, в єдиному стилі "Французький Прованс”. Розташована у будинку-пам'ятці класичної Сталінської архітектури. З усіх вікон та балкону відкривається чудовий краєвид. Дуже висока якість та стиль.
Обладнана всією найсучаснішою технікою: телевізор, варильна панель, електрочайник, духова шафа, холодильник, посудомийна машина, пральна машина.
Не залишає байдужим нікого. Кондиціювання всіх приміщень. Все нове та дуже якісне.
Квартира складається з:
- затишної кухні-вітальні,
- двох спальних кімнат: перша - господарська, друга - спальня кабінет,
- три гардеробні,
- один санвузол,
- балкон.
Квартира з балконом, з панорамним видом на Хрещатик, Фонтан, Київ.
У будинку є ліфт, охорона на території, домофон, консьєрж, сигналізація, цілодобове відео-спостереження., що забезпечує комфорт та безпеку для мешканців будинку.
Паркінг: платний охороняється і безкоштовний без охорони.
Розвинена інфраструктура, школа - 150 м, дитячий майданчик - 80 м, поліклініка, магазини, розважальні центри, історичні пам'ятки, ЦУМ, Арена-Сіті, Бессарабський ринок.
5 хвилин пішки до метро Хрещатик, що дає можливість безперешкодно без заторів дістатися до будь-якої точки Києва і залишатися мобільним.
Довгостроково, без куріння та домашніх тварин.
Сподобався варіант?
Тоді телефонуйте або пишіть на будь-який зручний для Вас месенджер.
При укладанні Договору терміном від 1 року - комісійні агенції сплачувати не треба.
Можлива оплата на ФОП, іноземний рахунок.
Код об'єкта - 7998. ще | Київ, Винграновского в, 2, район Дарницкий Ukraine/Kiev region/Kiev/saleПродаю 1-к квартиру по вул. Вінграновського, 2, в ЖК "Вудсторія", м.Червоний Хутір - 15 хв пішки.
Комплекс межує із Парком Партизанської слави!
Гарне місце для життя, чисте повітря. Вид на парк Партизанської слави.
Загальна площа 50 кв. 20/25 пов. вдома. пластикові вікна REHAU, металеві вхідні двері, незакінчений ремонт, будинок монолітно-каркасний. Передбачені поквартирні лічильники тепла, панорамне скління, гостьовий паркінг, закрита територія комплексу, паркінг, що охороняється.
У кроковій доступності магазини, школа, дошкільні заклади, медичний центр і т.д.
Будинок введено в експлуатацію, оформлено право власності.
комісія% ще | Лісники, Проєктна в, район Ukraine/Kiev region/Lesniki/saleПропонується елітна земельна ділянка біля Equides Club з видом на гольф під індивідуальне будівництво в селі Лісники, вул. Проєктна, Новообухівський напрямок.
Ділянка розташована напроти гольф-поля у престижному заміському комплексі Equides Club, який включає спа-центр Wellness Centre, спортивно-стрілецький клуб Steel Argument, гольф-клуб та ресторан Chalet Equides.
Поруч — ресторан Al Fresco, ТЦ «Мануфактура», «Мегамаркет», комплекс «Olympic Village», Блакитне озеро, села Ходосівка, Підгірці, Романків та Нові Безрадичі.
Площа ділянки — 24,6 соток, ідеальна прямокутна форма (41×60 м), з широким фасадом 41 м та зручним асфальтованим під’їздом.
Електроенергія поруч. ще | Київ, Центральная в, район Дарницкий Ukraine/Kiev region/Kiev/saleБез комісії!
Дом, дуплекс, таунхаус 160 кв.м за три хвилини їзди від метро Осокорки, Дарницький р-н, м. Київ. Без заторів, найближчий варіант, метро Славутич. Київ.
Просторий будинок з територією в 3 сотки облагороджений індивідуальним парканом.
Перестінки робляться під Ваші побажання, або ж за стандартним проектом. На першому поверсі: передпокій, кімната/кабінет, с/в, кухня-вітальня.
На другому поверсі три спальні з балконами та с/в.
Гарна вулиця, річка та дитячий майданчик. До транспортної зупинки 15 метрів, неподалік магазини, школи, ТЦ, аптеки тощо.
Код об'єкта: 9181 ще | Іванковичі, Заповідна в, 65, район Ukraine/Kiev region/Ivankovichi/saleБудинок в закритому котеджному містечку "Ліс та Озеро" , охорона, поруч ліс.
Загальна площа будинку 160 кв.м. 2 поверхи.
На першому поверсі: тамбур, сан вузол, котельня, коридор, кухня-Їдальня з виходом на терасу, гостьова кімната або кабінет.
На другому поверсі: 3 спальних кімнати, гардероб і сан вузол.
Будинок побудований з газоблоку, 100 мм утеплювача, залізобетонне перекриття.
Підведено всі необхідні комунікації септик (переливний з 2 секціями), електрика 15 кВт, свердловина 96 метрів, газ поруч з ділянкою.
Площа ділянки 5.5 соток. Сусіди використовують свою ділянку як сад, на якій не планується будівництво найближчим часом. На ділянці залита чаша під басейн 4м* 8м* 1.3-1.7 м. Вихід до басейну з тераси. Побудоване хоз. приміщення, а також для обладнання басейну.
Паркування на 2 авто.
Місце дуже мальовниче, чисте повітря.
Громадський транспорт Київ: маршрут №724 до ст. м. Виставковий центр.
У безпосередній близькості розташована розвинена комерційна та соціальна інфраструктура (школа, дитячі садки, спортивні майданчики, ресторани, міні-маркет, багато продуктових магазинів, господарські магазини).
Спп для колег.
Код об'єкта 14095 ще | Київ, Дніпровська набережна в, 18, район Дарницкий Ukraine/Kiev region/Kiev/saleПродается 1 комнатная квартира по ул. Днепровская наб., ЖК Севен / Seven в Дарницком районе, Осокорки.
Квартира расположена на 16/27 этажного дома, общей площадью 43 кв.м..
Выполнен качественный, современный ремонт в стиле лофт с шикарным видом и панорамными окнами.
Квартира очень теплая, сделан пол с подогревом.
Установлена мебел и бытовая техника.
Отличная инфраструктура: ТЦ Ривер молл, ТЦ Аркадии, рестораны, салоны и т.д..
Паркинг в 8 этажей.
код объекта - 12874 ще | Новосілки, Олексадрівська в, 2, район Ukraine/Kiev region/Novoselki/saleПропонуєтья затишна однокімнатна квартира біля лісу та озера в ЖК Нові Теремки, пуруч із ЖК Софія Нова, село Новосілки, вул. Олександрівська 2, секція 13.
Переваги локації:
Розвинена інфраструктура, зручна транспортна розв’язка.
У пішій доступності: ліс, озеро, супермаркети Novus, Фора, Епіцентр, Метро Теремки, ТЦ Магелан, ТРЦ Respublika Park, парк Феофанія.
Поруч дитячі майданчики, садочки, школи, салони краси, банки, затишні кафе та ресторани, а також зручне паркування.
До найближчої станції Метро Теремки - 2,5 км, парк Феофанія та ТРЦ Respublika Park - 4 км.
Про будинок:
Цегляний, утеплений, індивідуальне газове опалення.
Тепла й енергоефективна квартира.
Поверх: 7/10 поверхового будинку.
Площа: 41 кв. м.
Планування: передпокій, простора кухня-вітальня, спальня, суміжний санвузол.
Умови купівлі:
Переуступка майнових прав в офісі забудовника, можливе розтермінування на частину оплати 6–12 місяців.
Забудовник Rubicon Holding завершує 3 чергу (здача — до кінця 2025 року), 4 черга (13 секція) — планується здача на 4 квартал 2026 року.
Чудовий вибір для життя або інвестиції!
Без комісії.
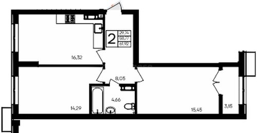
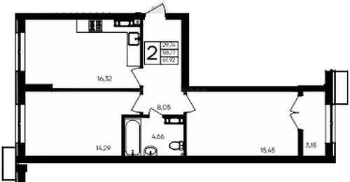
Код об'єкта - 16537 ще | Київ, Евгения Сверстюка в, 4, район Днепровский Ukraine/Kiev region/Kiev/saleПродаж видової 2-кімнатної квартири в ЖК Галактика по вулиці Сверстюка, 4.
Загальна площа квартири 44 кв.м., кухня-вітальня 14 кв.м. 2 балкони. Санвузел суміжний. Квартира розташована на 17 поверсі з 26.
Новобудова. Будинок зданий в експлуатацію. В квартирі якісний ремонт від будівельників. Встановлені лічильники, 3 швидкісних ліфти. Відеоспостереження, підземний паркінг.
Інфраструктура: поруч метро Лівобережна, супермаркет Новус, ТРЦ Комод , школа, садочок, дитячий майданчик, поряд
6-поверховий наземний паркінг, рестораны, банки, аптеки, кав"ярні.
Код 11788 ще | Київ, Центральная в, район Дарницкий Ukraine/Kiev region/Kiev/saleПродается большой участок на Осокорках 2 га.
Доступность до Днепра в 50 метрах.
Своя подстанция на 140 кВт.
Интернет, газ, электричество.
Территория закрытая, охрана.
От метро Осокорки 8 км, рядом большая фора, база отдыха Металист.
Асфальтированный подъезд.
Код объекта 8919 ще | Київ, Лісова в, район Дарницкий Ukraine/Kiev region/Kiev/longОренда таунхауса, закрита територія в Києві район Верхні Бортничі.
Загальна площа таунхауса 52.2 кв.м.
Планування: простора кухня вітальня з виходом на задній двір, спальня кімната, санвузол та вхідна група з місцем під шафу.
Повністю укомплектований побудовою технікою, кондиціонер, телевізор. Все що потрібно для комфортного проживання.
Для кожного розраховане своє місце для автомобіля.
Також великим плюсом є локація, тихе місце в оточені лісу всього в 5хв від метро Бориспільська.
Чекаємо на перегляд.
До речі пропозиція без комісії!!
Код об'єкту-14944 ще | Київ, Центральная в, район Дарницкий Ukraine/Kiev region/Kiev/saleОбщая площадь участка 1 Га. ( 36 соток - акт, 64 сотки- аренда 49 лет). Участок прямоугольной формы, асфальтированный подъезд. С участка выход на Днепр. До метро Славутич 12 км.
Без комиссии !
Код объекта 11532 ще | Вишеньки, , район Ukraine/Kiev region/Vishenki/saleДо уваги новий будинок в с. Вишеньки, поруч КМ Золоче, Гнідин!
Загальна площа будинку становить 120кв.м раціональне планування.
На першому поверсі: простора кухня вітальня з виходом на терасу та задній двір, дві спальні кімнати, котельня та санвузол.
На другому: простора кімната з особистим гардеробом та санвузлом.
Комунікації: світло 12кВт, свердловина та септик, також в містечко заведений газ (при потребі є можливість підключення)
Побудований з якісних матеріалів та з дотриманням всіх будівельних норм.
Розведена тепла підлога, електрика, закладні під кондиціонери в кожній кімнаті, також є можливість встановлення теплового насосу.
Перегляди в зручний час.
Не втрачайте можливості стати щасливим власником чудового будинку.
Код об'єкта-14464 ще | Підгірці, Польова в, 2, район Ukraine/Kiev region/Podgortsy/saleНовий одноповерховий будинок в КМ, з ремонтом та каміном в Підгірцях,
Новообухівська траса.
Поруч розташоване котеджне містечко «Сонячна долина», Блакитне озеро, ТЦ Мануфактура, Романків, Ходосівка, Лісники.
Загальна площа будинку 111 кв.м.,
Передпокій, кухня-вітальня з виходом на терасу, 2 спальні кімнати, санвузол.
Будинок побудований з керамоблоку, утеплений мінватою.
Алюмінієві енергозберегаючі вікна.
Стіни - штукатурка під фарбування.
Тепла підлога.
Будинок спроектований за сучасними архітектурними стандартами та побудований з використанням високоякісних матеріалів.
Підключені коммунікації:
електрика - 13 кВт,
інтернет,
вода із артезіанської свердловини,
каналізація – біосептик.
Є можливість підключити газ!
Ділянка 6 соток.
На теріторії котеджного містечка є дитяча та спортивна площадки, сквер, вихід до озера.
Включено у вартість: готовий будинок з ремонтом, камін, кухонні меблі, натяжна стеля, огорожа ділянки, рулонний газон, ландшафтні рішення, комунікації, електричний котел, бойлер, кондиціонери та генератор.
Відстань від Києва 13 км.
Без комісії.
Код об'єкта - 13545 ще | Петропавловское, , район Ukraine/Kiev region/Petropavlovskoe/saleПродаж земельної ділянки 2.176соток сільськогосподарського призначення в межах села Петропавлівське.
До метро міста Київ 15км, до Борисполя 18км.
Поруч Гора, Вишеньки, Гнідин.
Поруч знаходиться ще одна ділянка площею 2га.
Ділянка прямокутної правильної форми, рівний рельєф та без забудов.
Навколо висаджені багаторічні зелені насадження.
До ділянки прокладена дорога.
Ділянка відноситься до Золочівської громади.
Пропозиція без комісії для покупця))
Код об'єкта- 13930. ще | Підгірці, Озёрная в, район Ukraine/Kiev region/Podgortsy/saleПродаж земельної ділянки біля Блакитного озера під індивідуальне будівництво в Підгірцях, Новообухівська траса.
Поруч знаходяться: Блакитне озеро, комплекс «Olympic Village», розкішний заміського кінний клуб "Equides Club"(спортивно-стрілецький клуб Steel Argument, спа-центр Wellness Centre, гольф клуб, ресторан Chalet Equides), а також заміський ресторан Al Fresco, ТЦ Мануфактура, Мегамаркет, Лісники, Ходосівка, Романків.
Ділянка площею 20 соток, правильної форми.
Тихе, затишне місце і 20 хв на авто до Метро Видубичі!Без комісії.
Код об'єкта - 12128 ще | Київ, Князя Романа Мстиславича в, 26, район Днепровский Ukraine/Kiev region/Kiev/saleПродається затишна смарт-квартира площею 33 м² у сучасному ЖК на 18 поверсі 25-поверхового будинку. Квартира зі свіжим ремонтом, частково обладнана технікою та меблями, що робить її готовою до життя або здачі в оренду. Кухня займає 10 м², простір оптимально організований для зручного повсякденного користування.
Житловий комплекс пропонує високий рівень комфорту та безпеки: підземний паркінг, охорона, двір без машин. Поруч із будинком знаходиться парк Перемога, де можна відпочити, займатися спортом або прогулятися з дітьми. Інфраструктура району розвинена: поруч магазини, ринок «Юність», метро Дарниця, що забезпечує швидкий доступ до центру міста.
Ця квартира ідеальна для тих, хто цінує сучасний стиль життя, комфорт і практичне розташування, а також для інвесторів, які шукають готову до проживання або здачі в оренду нерухомість.
Параметри об’єкта:
18 поверх із 25
загальна площа 33 м²
кухня 10 м²
Комісія – 5%.
Код об’єкта 16752. ще | Лісники, Проектна в, район Ukraine/Kiev region/Lesniki/saleБудинок з ремонтом та меблями біля гольф-клубу Equides Club в Лісниках, Новообухівський напрямок.
Поруч знаходяться: елітний заміський кінний клуб Equides Club, спортивно-стрілецький клуб Steel Argument, спа-центр Wellness Centre, гольф клуб, ресторан Chalet Equides, КМ Хутір Ясний, а також ресторан Al Fresco, ТЦ Мануфактура, Ходосівка, Підгірці, Романків.
Характерна риса нашого будинку - наявність просторої кухні-вітальні з панорамним віком та виходом на велику терасу 67 кв.м.
Площа будинку становить 198 кв. м.
Планування будинку включає:
І поверх - простора кухня-вітальня з виходом на велику терасу, дві спальні кімнати з виходом на терасу, два санвузли та пральна кімната.
ІІ поверх - господарська master-спальня зі своїм санвузлом та гардеробом.
Кухня обладнана високоякісною вбудованою технікою рівня lux від Miele, Franke. Hitachi.
Додаткова очистка питної води здійснюється за допомогою системи ОСМОСА PURICOM CE-4 PUMP.
Сантехніка: Volle, Imprese.
В будинку також є пральна і сушильна машини, кондиціонери та тепловий насос.
Три стабілізатори Volter та резервний генератор Konner&Sohnen 7,5 кВт забезпечують стабільну роботу.
Будинок побудований за норвезькою технологією, тут вдало поєднано якість та зручність.
Фундамент свайно-стрічковий.
Стіни 260 мм: сосна (фальшбрус) та утеплювачь базальтова вата 200 мм.
Комунікації: електроенергія - 6,5 кВт, свердловина, септик, оптоволокно та система блискавкозахисту.
Ділянка 6 соток з доглянутим газоном та системою автополиву.
Паркан з автоматичними відкатними воротами.
Також є парковка з накриттям на два автомобілі.
5 хв пішки до Equides Club та 20 хв до Печерська!Без комісії.
Код об'єкта - 12516 ще | Лісники, Лугова в, 21, район Ukraine/Kiev region/Lesniki/saleКомплекс "LION HILLS" - це унікальний житловий проект, розташований на мальовничій території в 16 гектарів, всього в 15 хвилинах від центру Києва. У комплексі доступно 100 видових квартир з гарним видом на пагорби та високими показниками інсоляції.
Кожна квартира пропонує дві окремі спальні кімнати, два санвузли, велику вітальню, кухню-студію та гардеробні зони. Окрім цього, у кожній квартирі є тераса, яка дозволяє насолоджуватися красивим краєвидом.
У комплексі "LION HILLS" будівництво здійснюється в клубному форматі, з каскадним будівництвом та використанням панорамного скління. Це дозволяє зберегти вид на пагорби з кожної квартири.
Кожна квартира має два паркомісця, і всього на одній секції розміщується лише 6 квартир. У будівлі всього 4 поверхи, і на кожному поверсі знаходяться тільки 2 квартири.
Основною метою проекту було створення житла майбутнього, що відповідає найвищим стандартам якості та комфорту. Місце розташування комплексу, Лісники, ідеально підходить для цього завдання. Лісники розташовані на Дніпровському шосе, яке є однією з найменш завантажених трас в місті. Додатково буде побудовано прямий заїзд з Дніпровського шосе, щоб забезпечити комфортний та безпечний шлях додому для мешканців комплексу.
Новий житловий комплекс "Lion Hills" в Лісниках, пропонує комфортне та безпечне проживання з використанням передових будівельних технологій. Квартири оснащені панорамними віконними системами, системами рекуперації та тепловими насосами, що дозволяє знизити витрати на опалення та забезпечити комфортне проживання. Комплекс також має власну артезіанську свердловину та автономний генератор електроенергії. Для безпеки мешканців передбачена охоронна система, а для автомобілів – підземний паркінг та зарядка для електромобілів.
Крім того, у житловому комплексі передбачені ресторани, продуктові магазини, медичний центр, фітнес-клуб з басейном та SPA, а також об'єкти для дітей: ігрова кімната, дитячий сад та початкова школа. Поруч знаходиться розвинена інфраструктура, така як ТРЦ, супермаркети та аутлет-містечка. Комплекс також недалеко від заміських комплексів, де можна провести час на різних активностях, таких як СПА, гольф або верхова їзда.
Код об'єкта 12763 ще | Лісники, Чапаєва в, 2, район Ukraine/Kiev region/Lesniki/saleКомплекс "LION HILLS" - це унікальний житловий проект, розташований на мальовничій території в 16 гектарів, всього в 15 хвилинах від центру Києва. У комплексі доступно 100 видових квартир з гарним видом на пагорби та високими показниками інсоляції.
Кожна квартира пропонує дві окремі спальні кімнати, два санвузли, велику вітальню, кухню-студію та гардеробні зони. Окрім цього, у кожній квартирі є тераса, яка дозволяє насолоджуватися красивим краєвидом.
У комплексі "LION HILLS" будівництво здійснюється в клубному форматі, з каскадним будівництвом та використанням панорамного скління. Це дозволяє зберегти вид на пагорби з кожної квартири.
Кожна квартира має два паркомісця, і всього на одній секції розміщується лише 6 квартир. У будівлі всього 4 поверхи, і на кожному поверсі знаходяться тільки 2 квартири.
Основною метою проекту було створення житла майбутнього, що відповідає найвищим стандартам якості та комфорту. Місце розташування комплексу, Лісники, ідеально підходить для цього завдання. Лісники розташовані на Дніпровському шосе, яке є однією з найменш завантажених трас в місті. Додатково буде побудовано прямий заїзд з Дніпровського шосе, щоб забезпечити комфортний та безпечний шлях додому для мешканців комплексу.
Новий житловий комплекс "Lion Hills" в Лісниках, пропонує комфортне та безпечне проживання з використанням передових будівельних технологій. Квартири оснащені панорамними віконними системами, системами рекуперації та тепловими насосами, що дозволяє знизити витрати на опалення та забезпечити комфортне проживання. Комплекс також має власну артезіанську свердловину та автономний генератор електроенергії. Для безпеки мешканців передбачена охоронна система, а для автомобілів – підземний паркінг та зарядка для електромобілів.
Крім того, у житловому комплексі передбачені ресторани, продуктові магазини, медичний центр, фітнес-клуб з басейном та SPA, а також об'єкти для дітей: ігрова кімната, дитячий сад та початкова школа. Поруч знаходиться розвинена інфраструктура, така як ТРЦ, супермаркети та аутлет-містечка. Комплекс також недалеко від заміських комплексів, де можна провести час на різних активностях, таких як СПА, гольф або верхова їзда.
Код об'єкта 12782 ще | Ходосівка, Лавандова в, район Ukraine/Kiev region/Hodosovka/saleДом 186кв.м,. 2 этажа, очень комфортный, красивый, уютный, теплый,
на данном этапе идет завершенные строительных работ и уборка территории.
Все фото только визуализация, через пару месяцев все будет как на фото, заезжай и живи.
1 этаж - коридор в котором есть гардеробная, котельная, постирочная, хоз.блок, кабинет, дальше по ходу большая кухня- студия-гостинная с камином и выход на задний двор, терраса где есть выводы под будущий мангал и канализацию.
2 этаж - три спальни, в каждой спальне гардеробная и санузел.
Участок 11 соток, навес под авто на два авто.
Дом высокотехнологичный с автономной системой отопления(все показано на фото), геотермальный тепловой насос, где нету батарей, кондиционеров, вся система отопления встраивается в пол, стены, потолок, и вы живете в микро-климате, вам решать когда будем удобно переключать зима-лето(обогревать или охлаждать).
Низкий уклон крыши, преимущество в том, что не надо снего-держателей (снег сползает плавно), и вынос крыши на метр (солнце не попадает в окна, дождь не бьет по стеклу).
Коттедж рассчитан на людей, живущих активной жизнью и стремящихся к уюту в родном доме.
Здесь можно наслаждаться природной тишиной, чистым воздухом и удобной инфраструктурой,
после тяжелого рабочего дня, где можно почувствовать себя свободно и независимо, ведь всё в доме автономно.
На территории городка есть жилищно-коммунальное управление,
эко-маркет
Дом-пекарня
Ковярня
Спа-салон
детская площадка
оборудованный пляж
Централизованная водопоставка, канализация, газ.
Школьный автобус.
Совсем рядом расположены Аутлет-городок «Мануфактура»,
крупный торговый центр Мегамаркет,
кинотеатр «Баттерфляй-кантри»,
Боулинг-клуб «Дельтаплан»,
Детский развлекательный центр «Дакленд»,
спортивный клуб «Sport Life» с бассейном,
конный клуб и многие другие заведения для вашего досуга.
код объекта 13385 ще | Київ, 12-а Зелена в, район Дарницкий Ukraine/Kiev region/Kiev/saleДілянка в Ст відродження, Осокорки, метро Славутич 6 км.
Ділянка правильної форми, площею 6 соток, по фасаду 30 метрів.
Заведено електроенергію 5кВт, Асфальтований заїзд, поруч невелике озерце
Метро Славутич 10-15 хв машиною, заїзд можливий з вулиці Східна або Виноградна.
Код: 16011 ще | Вишеньки, Франка в, район Ukraine/Kiev region/Vishenki/saleДо Вашої уваги - сучасні таунхауси в селі Вишеньки, Київської області.
Поруч Гнідин, Бортничі, КМ «Золоче».
Площа ділянки від 1.5 до 2.5 сотки, огороджена парканом.
Загальна площа будинку 136кв.м. Житлова 59 кв.м.
На першому поверсі: простора кухня-вітальня з виходом на терасу та власний двір, санвузол.
На другому поверсі: господарська спальня, дві дитячі або для гостей з виходом на балкон, санвузол другого поверху та горище.
Таунхаус зроблений з: газоблоку утеплений мінватою, залізобетонне перекриття.
Комунікації: 15 кВт електроенергії, свердловина 70 м, септик з переливом, газ (встановлений газовий котел 3-х контурний)
та виведене місце під генератор.
Під кожен таунхаус розрахована комора для зберігання велосипедів, рибальських приладь тощо.
Закрита територія комплексу з паркомісцями для двох автомобілів та дитячим майданчиком.
У Вишеньках Вас зустріне розвинена інфраструктура: супермаркет, ресторани, салони краси, спа-центр, школи, дитячі садочки, аптеки, лікарні, спортивні майданчики. Ліс та озера з пляжами. Зупинки громадського транспорту.
Зручна транспортна розв’язка до Борисполя 25 хв, до Києва 20 хв на автомобілі.
Є можливість розтермінування від забудовника.
Також розглядається продаж під програму єОселя, еВідновлення та сертифікат.
Код об’єкта- 10659 ще | Київ, Андрія Верхогляда в, 1-20а, район Печерский Ukraine/Kiev region/Kiev/saleПродаж діючої кав’ярні з кухнею в ЖК Новопечерські Липки
Продається готовий бізнес — повноцінна кав’ярня з кухнею у престижному житловому комплексі Новопечерські Липки. Це не просто точка з кавою, а заклад з повним циклом: напої, сніданки, обіди, десерти та доставка
Район з високою щільністю забудови, де проживає багато забезпечених мешканців — постійний трафік і великий платоспроможний попит
Кав’ярня має два окремі входи з різних боків будинку. Зроблено новий сучасний ремонт, створено стильну атмосферу. Просторе приміщення дозволяє працювати як з відвідувачами в залі, так і з онлайн-замовленнями. Є повноцінна кухня з професійним обладнанням
У продаж входить усе: техніка, меблі, навчений персонал, база постійних клієнтів і перевірені постачальники
Основне обладнання:
– кавомашина Victoria Arduino
– кавомолка, фільтр-кава, бойлер
– холодильники, морозильні камери
– система очищення води
– соковижималки, саладетта, гриль
– пароконвектомат, індукційні плити, витяжка
– посудомийна машина, вакууматор, барна стійка з вітриною
– та інші професійні прилади
Є дизельний генератор, АКБ та інвертор для стабільної роботи при відключенні світла
Бізнес повністю готовий до передачі новому власнику — чудова можливість увійти у ресторанний бізнес без стартових витрат
Приміщення в довгостроковій оренді, з можливістю переоформлення
Деталі за телефоном
Код об'єкту 16114 ще | Київ, , район Дарницкий Ukraine/Kiev region/Kiev/saleПропонується до продажу цегляний будинок на першій лінії Дніпра. Знаходиться у престижному приватному секторі Осокорки, на вулиці 80-а Садова. Це чудовий варіант для постійного проживання або як заміська резиденція.
Загальна площа 250 кв.м. 2 поверхи і підвал. У будинку простора кухня-вітальня площею 49 кв.м з каміном, виходом на криту терасу — ідеальне місце для родинного відпочинку. Передбачено три окремі спальні на другому поверсі для комфортного проживання кожного члена сім'ї. 2 санвузли, ванна кімната обладнана джакузі.
Інтер'єр у гарному стані, за будинком доглядали.
Будинок має три незалежні системи опалення, генератор на випадок вимкнення електроенергії, а також укриття-бомбосховище (підвал з 3 виходами) що забезпечує додаткову безпеку для вашої родини.
Земельна ділянка площею 4,4 сотки. На території облаштована барбекю-зона для відпочинку на свіжому повітрі. Є місце на два авто та додаткові місця для гостьового паркування. У подарунок новим власникам — водяний мотоцикл.
Будинок знаходиться на першій лінії від Дніпра з прямим виходом до води — ідеальне місце для риболовлі, купання або водних видів спорту. Всього 4 км до станції метро "Славутич" — зручно дістатися до центру міста, зберігаючи при цьому приватність і тишу заміського життя.
Код об'єкта 16119
Без комісії ще | Київ, Алма-Атинская в, 39, район Днепровский Ukraine/Kiev region/Kiev/saleПродається унікальна квартира площею 46 м², де кожен куточок створювався з думкою про комфорт та затишок. Автентичний ремонт робить простір теплим і домашнім, а для реального покупця є можливість розширити квартиру ще на 30 м² – ідеально для сім’ї або тих, хто хоче додатковий простір для життя та творчості.
Кухня – серце квартири, площею 16 м², обладнана сучасною технікою: варильна поверхня, духовка, витяжка, холодильник і навіть камін для затишних вечорів. Дубовий стіл і м’які місця, які можна використовувати як додаткове спальне місце, роблять кухню зручною і функціональною.
Вітальня спроектована для відпочинку та спілкування: телевізор, кондиціонер на тепло і холод, двоспальний розкладний диван з нішою, м’яке підвіконня і стильні нові килими створюють простір, де хочеться залишатися цілий день.
Утеплений балкон із підігрівом підлоги та стін – це ваш маленький оазис: тут двоспальне ліжко, робоче місце та величезні ніші для зберігання речей. Ванна кімната та туалет оснащені бойлером, коридор має гардероб на всю стіну, а додаткова кладова допоможе зберігати побутові речі акуратно і компактно.
Квартира підключена до інтернету та обладнана сигналізацією Ajax із швидким реагуванням охорони – безпека вашого дому завжди під контролем.
Будинок цегляний, побудований після 2005 року: теплий узимку, комфортний улітку. Два ліфти, пандус, консьєрж і доглянутий двір із великим дитячим майданчиком створюють справжній простір для життя. Дві стоянки для авто та ліс із озером поруч – ідеальне місце для прогулянок і відпочинку на свіжому повітрі.
Інфраструктура району – на відмінному рівні. Пішки доступні магазини, клініки, школа, садочки, кав’ярні та зоолікарня. Громадський транспорт за 3 хвилини ходьби, до метро Чернігівська – 10 хвилин, зручний доступ до трамвая, маршруток у різні напрямки міста, залізничний вокзал «Дарниця» за одну зупинку.
Ця квартира ідеальна для тих, хто цінує затишок, безпеку та сучасний комфорт, де кожен день приносить задоволення від життя. Тут дійсно хочеться залишатися – і робити свій дім справжнім, затишним та теплим.
Параметри об’єкта:
Поверх: 12/13
Загальна площа: 46 м²
Площа кухні: 16 м²
Код об’єкта: 16756 ще | Київ, Барбюса Анрі в, 39/2, район Печерский Ukraine/Kiev region/Kiev/saleПродаж 3-х кімнатної квартири в серці Київа, ЖК преміум-класу TRIINITY (Трініті, Тринити). Вул.Тютюника ( Анрі Барбюса 39/2 ), поряд вул. Саперне поле, Ковпака. Недалеко ЖК Бульвар Фонтанів, Taryan Towers, Французький квартал і тд. У пішій доступності метро Палац України.
Житловий комплекс уособлює триєдність стилю, технологій та природи. Це три житлові будинки з каскадною поверховістю, лаконічними прямими лініями, панорамним склінням та нейтральною кольоровою гамою фасадів.
Квартира знаходиться на 6-му поверсі, прекрасне планування: передпокій, санвузол, гардеробна, спальня зі своїм санвузлом і гардеробною, простора кухня-вітальня, і ще одна спальня. Балкончик, вид у двір.
У комплексі зроблено все для Вашого максимального комфорту та безпеки. Охорона, камери, пропускна система по картці, шикарна тераса на 18-му поверсі з шезлонгами, зоною барбекю, кухнею, кінотеатром і т.д. Дитячий майданчик, підземний паркінг, облагороджена територія, швидкі ліфти і тд.
Код об'єкта: 13956. ще |
Підписатися
Підпишіться на нові оголошення за запитом:
Вам надіслано листа для підтвердження підписки
Будь ласка, вкажіть коректну email адресу
Ви вже підписані на цей запит
|