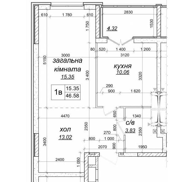
1-кімн. кв., 46.58 м², 16/25 поверх1 109 000 ГРНКиїв, Теремки, Вул Приміська 22-26, 22 • На мапі Нова Лінія Кімнат1
Площа46.58 м²
Житлова15 м²
Кухня10 м²
Поверх16 з 25
Продається 1 к квартира в новобудові (переуступка) м.ТеремкиПродаж від власника (без посередників, переуступка). Продається простора і світла 1 кімнатна квартира (переуступка) в ЖК Одеський Бульвар (метро Теремки 15 хв пішки або 2 хв на авто). 16й поверх (з 25ти). Будинок 5 секція 1. Вікна на південь. Є Можливість перепланування в Євро двушку, та збільшити кухню за рахунок лоджії на 4.3 м2. Є Можливість збільшити кімнату за рахунок холу. Ввод будинку в експлуатацію буде в 3 кв. 2022p, заселення в кінці 2022р. Надійний забудовник, будинки здаються і заселяються своєчасно. Адреса - вул Приміська 22-26 (Новосілки), номер будинку іще не присвоєно оскільки ведеться будівництво. В квартирі буде : - Цементна стяжка підлоги. - чорнова штукатурка стін. - Віконні системи Rehau з енергозберігаючим склопакетом. - Протипожежні вхідні двери. - Мідна ел. проводка по квартирі. - Радиатори опалення. - Лічильники води та електроенергії. - Заскляна та утеплена лоджія. Тепла квартира. - Вид з вікон на Південь (сонячна сторона), на садочок Інституту Садівництва та двір. - Планується власний багаторівневий паркінг, гостьовий паркінг, спортивні майданчики, дитячий садок, інша інфраструктура. - Поруч лісопаркова зона, до автобусної зупинки пару хвилин пішки. - Поруч знаходяться Фора, Нова Лінія, АТБ, авто заправка ОККО, школа та дитячий садок. - До метро Теремки - 2 хвилини на авто або маршрутці, пішки - 15 хвилин (пішохідний тротуар почали будувати). Біля метро теремки знаходиться великий Торгівельний Центр. БалконНі ЛоджіяТак, 1 Вікна виходятьУ двір Роздільний санвузолНі Суміщений санвузолТак, 1 РемонтВід будівельників Тип об'єктуОкрема квартира Тип будинкуНовобудова Назва ЖКОдеський Бульвар Id оголошення509419 Оголошення додано24.05.2021 Оголошення оновлено07.07.2021 Поділитися 1 109 000 ГРН Власник: Петро Михайлович Повідомлення |
|












