Будинок, 142 м², 1 поверх, 4 кімнати, 12 сот.110 000 USDНовосілки, Вышгородский, Лобановского • На мапі Кімнат4
Площа142 м²
Ділянка12 сот.
Поверхів1
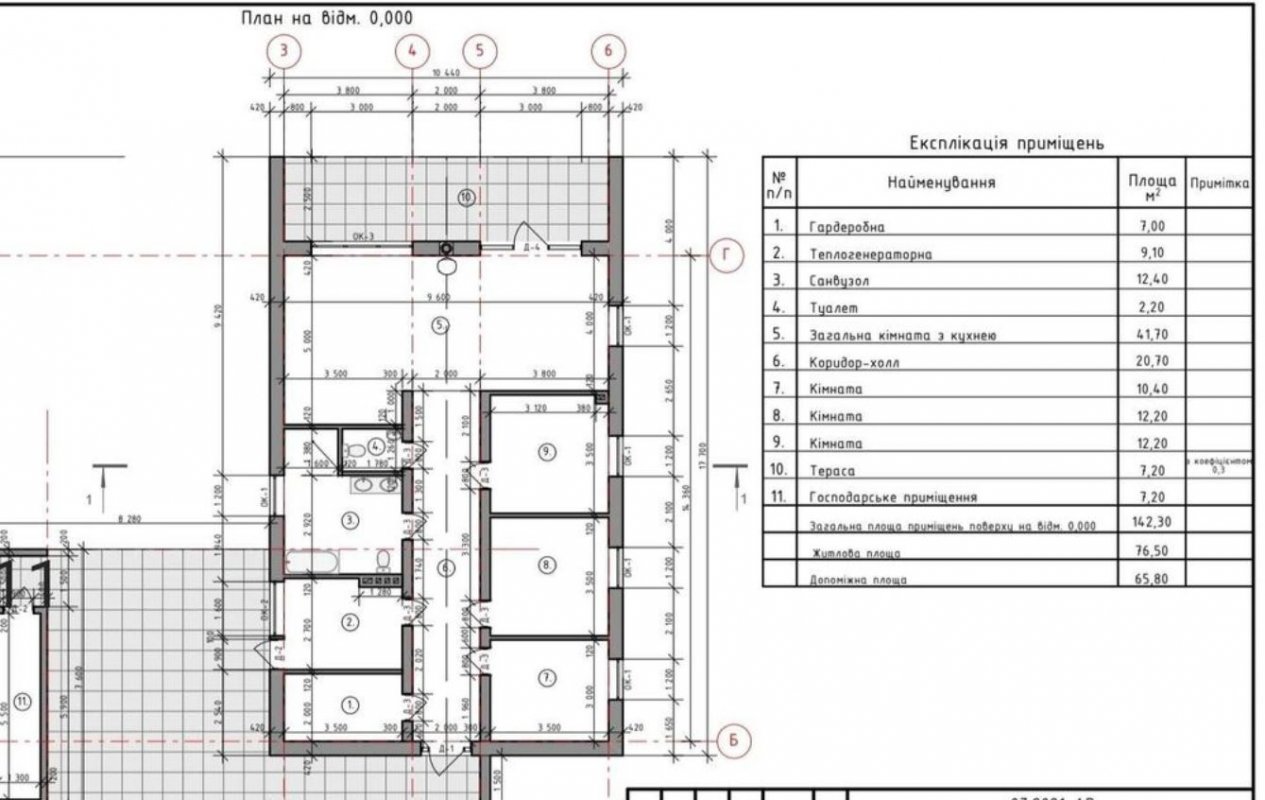
Будинок Барн-Скандинавія. (Власник)Будинок був збудований за Скандинавським проектом, з другим світлом. В якому головною перевагою є чітке розміщення і правильне використання площі, при цьому не втративши простір. Загальна Площа-142м2. -Господарське приміщення - Криті паркомісця на 2-автомобілі -Теплогенераторна кімната -Гардероб -2 Санвузли -3 Кімнати -Загальна кімната з обідньою зоною та виходом на вуличну терасу. З відмінним пейзажом, де можна спостерігати гарні заходи сонця (бо будинок попередньо розташовувався саме під дану ділянку) Площа Ділянки-12 соток (з широким фасадом 25.44м) Електроенергія- 15-Квт з лічильником і тарифом день ніч. Свердловина-приєднана до будинку Септик-приєднаний до будинку Матеріал При Будівництві використовувався лише гарної якості та перевіреними брендами: -Фундамент монолітна плита (з терміном відстоювання) -Стіни Газоблок Aerok-300 -Утеплення: Цегляна клінкерна плитка (Німеччина) з утеплювачем (Польща) замовлялась за кордону. Стіни будинку базальтова вата 100 мм+пінопласт-100 мм+пінополістирол -Покрівля утеплення вата-200 мм -Вікна Rehau energo-70 (склопакет закачений газом аргон) -Озеленення- завершено посадку нових насаджень, та чистка підрізка і удобрення вже існуючих багаторічних сосен на ділянці. -Прописка можлива (межі села). В даний момент йдуть завершальні роботи по парканам і воротам. Локація-цей будинок знаходиться в надзвичайно мальовничому та екологічному Новому масиві селища Новосілки. Має свою розвинену інфраструктуру де є, школи магазини, зупинки громадського транспорту. Селище багате на безліч озер та пляжі . В даній локації нові будинки та дуже привітні сусіди. Логістика - Дуже зручне розташування селища відносно Вишгороду та Києва. Абсолютно 100 відсотково піддійте для постійного проживання А також можемо організувати, зробити, проконсультувати, та проконтролювати по внутрішньому оздобленню під ключ. В тематиці скандинавії та мінімалізму або по вашому особистому дизайну. Власник! Тип об'єктуБудинок Id оголошення592932 Оголошення додано20.02.2022 Оголошення оновлено20.02.2022 Поділитися 110 000 $ Власник: Виталий Повідомлення |
|
















































