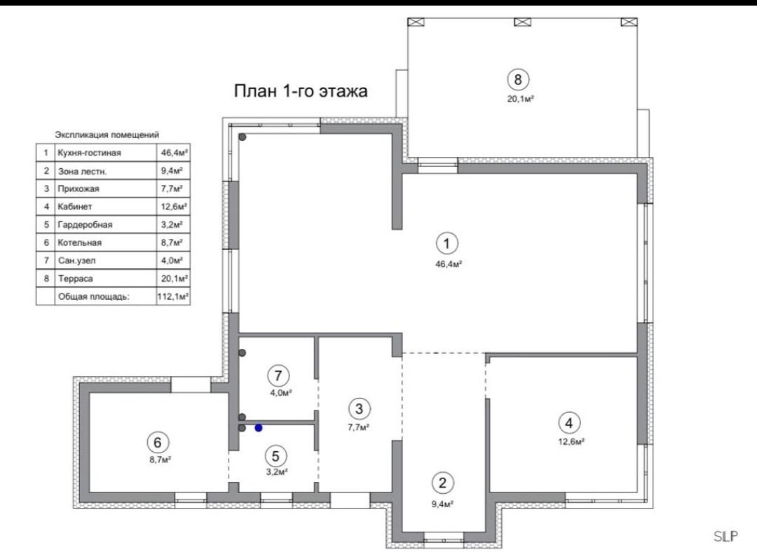
Будинок, 200 м², 2 поверхи, 5 кімнат, 4 спальні, 7 сот.170 000 USD • 0% комісіяКиїв, Обуховский, с.Ходосеевка • На мапі КГ Новій свет Кімнат5 роздільні
Спалень4
Площа200 м²
Житлова110 м²
Кухня18 м²
Ділянка7 сот.
Поверхів2
Продам 2 єт. дом 200 кв. м. в с. Ходосеевка, КГ Новій светНовообуховская трасса, с. Ходосеевка, КГ Новый Свет, 3 км ТЦ Мануфактура, рядом с. Лесники. Охраняемый коттеджный городок на 25 домов премиум класса с красивыми панорамными пейзажами и примыканием к лесу, асфальтный подьезд, осветление, интернет, сигнализация, спортивно-детский площадка. Продажа 2 эт. кирпичного дома 200 кв. м. с террасой и навесом 40 кв. м. на 3 авто, под крышей еще 40 кв. м., 5 комнат, 3 с. у. Дома построены из керамоблока, утеплены 15 см пенопласта, декоративная штукатурка и плитка на фасаде, фальцевая крыша, утеплена 20 см минеральной ваты, окна 5 камерный немецкий стеклопакет Salamandra, монолитные пекрекрытия между этажами, н=3.3м, на внутренних стенах-чистовая машинная штукатурка, заведены все коммуникации. Коммуникации-электрика 18 квт, 3 фазы, скважина с глубинным насосом 60 м, канализация септик 12 куб., положена тротуарная плитка, осветление и озеленение. Есть на выбор 3 вида планировок от 195 кв. м., 200 кв. м., 205 кв. м. от 6 соток до 8 соток земли. Цена от 170 000 у. е. под чистовую отделку, под финишную отделку 220 000 у. е. (электрокотел, бойлер, фильтр на воду, теплые полы, радиаторы, чистовые стены и стяжка, выход на генератор), с ремонтом 310 000 у. е. Тип об'єктуБудинок Назва котеджного селищаКГ Новій свет Id оголошення655352 Оголошення додано29.11.2022 Оголошення оновлено26.04.2026 Поділитися 170 000 $ Агент: Обирик Анжела Кирилловна АН 'Украинская недвижимость' Повідомлення |
|










































