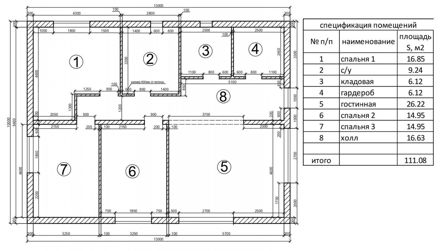
Будинок, 112 м², 1 поверх, 3 кімнати, 5 сот.10 500 000 РУБСевастополь, Гагаринский, территория СТ Бриг • На мапі Кімнат3
Площа112 м²
Житлова68 м²
Кухня26 м²
Ділянка5 сот.
Поверхів1
Продается дом 120 кв м на участке 5 сот СТ Бриг - идеальный вариант для семейной жизни с возможностью льготной ипотеки! Предлагаем вашему вниманию готовый дом общей площадью 120 м² в предчистовой отделке, который станет комфортным и современным жильем для вашей семьи. Особенностью данного предложения является возможность приобретения жилья с использованием всех видов льготной ипотеки, что делает его ещё более привлекательным. О доме: Этот просторный дом построен из газоблока 250 мм с монолитными колоннами и перемычками, а также армопоясом, что обеспечивает прочность и долговечность конструкции. Фасад утеплен минеральной базальтовой ватой и отделан декоративной штукатуркой с бело-серых тонах. Внутреннее пространство дома продумано до мелочей. Удобная планировка включает в себя: - 3 изолированные комнаты, - просторный санузел, - котельную, - гардеробную, - огромную кухню-гостиную с панорамным остеклением и выходом на террасу — идеальное место для уютных семейных вечеров и встреч с друзьями. Участок: Дом расположен на угловом участке 5 сот. правильной формы с асфальтированным заездом, что обеспечивает легкий доступ и возможность парковки. В цену входит также забор по периметру, откатные ворота и забетонированная площадка под авто. Коммуникации: Дом полностью обеспечен необходимыми коммуникациями: электричество 3 фазы (15 кВт), круглогодичное водоснабжение и установленный септик. Буду рада ответить на все ваши вопросы и организовать оперативный просмотр. Тип об'єктуБудинок Id оголошення713896 Оголошення додано23.12.2024 Оголошення оновлено04.04.2026 Поділитися 10 500 000 ₽ Агент: Нина Сергеевна АН 'Херсонес Недвижимость' Повідомлення |
|

















