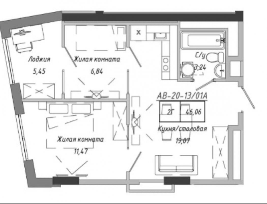
2-кімн. кв., 46.06 м², 5/10 поверх35 006 USD • 0% комісіяДоступна програма кредитування "єОселя" (докладніше про програму ) Одеса, Авангард, Спрейса, 2 • На мапі 7 км Кімнат2 роздільні
Площа46.06 м²
Житлова18.31 м²
Кухня19.07 м²
Поверх5 з 10
Терміново! Продам двокімнатну квартиру Одеса, затишок, комфорт для сім'їТерміново! Досить тулитися на орендованій — час у своє! Ця квартира — ідеальне рішення для сім'ї: простора, сучасна і надійна, з умовами, в яких спокійно і дорослим, і дітям. Почати можна всього з 5$ першого внеску! Площа — 46,06 м²: простора кухня, дві ізольовані кімнати — місце знайдеться для всіх! Чудово підійде для сімей з дітьми або для літніх батьків. Вибирайте поверх на свій смак — хочеш тихо і усамітнено, хочеш — з видом на місто і заходи сонця. Закритий охоронюваний комплекс з власним бомбосховищем і генератором, який працює 24/7 — у вас буде світло і тепло в будь-який блекаут, не тільки в під'їзді, а прямо в квартирі. Комплекс з усім необхідним: Школа і садок — поруч, Varus, Rozetka, аптеки і магазини — все під рукою, Зона барбекю, спортмайданчик, Нова пошта, Укрпошта — живи і радій! Перший внесок — всього 30%, а щомісячний платіж — близько $350 — менше, ніж двокімнатну знімати квартиру! Можна підключитися до держпрограми «ЕОселя» — беріть собі, батькам або дітям на майбутнє. А якщо хочете заїхати відразу — зробимо ремонт «під ключ» всього за $250м². Чому варто брати? Тому що світло, вода, охорона, бомбосховище, надійність і все це — за ціною оренди. Поки інші живуть без світла — ви п'єте каву під кондиціонером. Таких пропозицій в Одесі — одиниці. Не пропустіть шанс подарувати родині гідний будинок! Телефонуйте — все розповім, покажу, оформимо без зайвого клопоту. ЛоджіяТак, 1 Роздільний санвузолТак, 2 ОпаленняКришна котельня Горяча водаБойлер Тип об'єктуОкрема квартира Тип будинкуНовобудова Тип проекту Id оголошення750728 Оголошення додано20.04.2026 Оголошення оновлено24.04.2026 Поділитися 35 006 $ Агент: Юлия Петровна Повідомлення |
|























