|
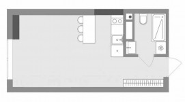
Площа42 м²
Житлова30 м²
Кухня5 м²
Поверх2 з 10
Продаются великолепные апартаменты в ЖК "Agua Deluxe" 42 м² на 2/10 этаже. Апартаменты оснащены всем необходимым для комфортного проживания! Вся мебель остается новым владельцам! Светлая просторная лоджия ! Всего 50 м до моря. Скидка 35% на СПА. Дом и окружение Панельный дом с пассажирским лифтом, чистыми подъездами и ухоженной территорией. Во дворе — открытая парковка. Рядом магазины, кафе и остановки транспорта — всё для комфортной жизни и отдыха ️ ️. Удобные выезды на ключевые магистрали обеспечивают быструю мобильность по городу. Комфорт и преимущества Центральное отопление и современные окна обеспечивают тепло и тишину круглый год. Высота потолков 3 м дарит дополнительный объём, лоджия расширяет пространство и дарит свежий воздух. Апартаменты подойдут для личного проживания и инвестиций — высокий потенциал аренды . Условия сделки Быстрый выход на сделку. Документы готовы. Доступен онлайн-показ — организуем просмотр в удобное время, ответим на все вопросы . Звоните прямо сейчас, что бы договориться о просмотре и выяснить все детали! Тип об'єктуОкрема квартира Id оголошення764430 Оголошення додано29.10.2025 Оголошення оновлено04.04.2026 Поділитися 13 850 000 ₽ Агент: Людмила Николаевна АН 'Херсонес Недвижимость' Повідомлення |
|





























