|
Кімнат3
Площа94 м²
Житлова40 м²
Кухня36 м²
Поверх25 з 27
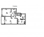
3-кімнатна, Вишгородська , 45г, Подільський3-кімнатна квартира, Вишгородська , 45г, Подільський район. Метраж 25/27. Продам шикарну 3х кімнатну квартиру ЖК Паркове Місто вул. Вишгородська 45 Г. Площа квартири 94м2 - двохрівнева із прекрасним видом на парк. Розташовується на 25-26 поверхах. 1 поверх вміщує велику кухню студію 38м2 + балкон 3.8м2 який можна об‘єднати, санузл, коридор. 2 й поверх - дві кімнати (спальня, дитяча), гардеробна, санузл, + ще один великий балкон. Сходи залиті. Індивідуальні лічильники тепла, електрики води, світла, не високий тариф за прибудинкову територію. У комплексі одна з найкращих закритих територій в Києві для життя, дитячі майданчики, зелений ландшафт, підземні паркінги, два озера, футбольне, баскетбольне поле, два тенісні корти, чудова паркова зона із заповідником. Чудова інфрастуктура : безліч салонів красоти, магазинів, супермаркет Вапус одразу біля центрального входу, цілодобова охорона усієї території. 4 ліфти відомої фірми Schindler (швидкісні та тихі). 25 сек і ви дома. Будинок зданий в експлуатацію 2022р, всі документи на руках без ремонту.. Тип об'єктуОкрема квартира Id оголошення794718 Оголошення додано15.02.2026 Оголошення оновлено22.04.2026 Поділитися 130 000 $ Агент: Ольга Мусатюк АН 'АН КУБ' Повідомлення |
|





































