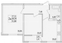
2-кімн. кв., 50.97 м², 10/10 поверх14 016 750 РУБСевастополь, Гагаринский, Колобова ,, 44 • На мапі Кімнат2
Площа50.97 м²
Кухня10.42 м²
Поверх10 з 10
В Севастополе, на живописном побережье Черного моря, расположен жилой комплекс «Александрия» — превосходный вариант для комфортного и удобного проживания. В этом районе города представлен разнообразный ассортимент квартир, отличающихся планировками и стоимостью, что позволяет каждому подобрать подходящий вариант. Жителям комплекса доступны современные удобства и обустроенная территория, а из окон открываются живописные виды на горы и море. Если вы стремитесь к сочетанию качества и уюта, «Александрия» станет оптимальным выбором. Свяжитесь с нами, чтобы получить подробную информацию и стать счастливым владельцем недвижимости в этом комплексе.
В продаже имеются квартиры в жилом комплексе "Александрия" комфорт-класса. Общая площадь составляет 50,97 кв.м., при этом кухня - 10,42 кв.м. Высота потолков достигает 2,7 м. Полная сумма в договоре, прямая продажа! Семейная ипотека и материнский капитал! Без комиссии, все оплачивает застройщик! Если покупаете через нашу компанию, осуществляем приёмку квартиры! ❌ С агентствами не сотрудничаем, просьба не звонить! Тип об'єктуОкрема квартира Тип будинкуНовобудова Id оголошення798011 Оголошення додано27.04.2026 Оголошення оновлено27.04.2026 Поділитися 14 016 750 ₽ Агент: Менеджер АН 'Херсонес Недвижимость' Повідомлення |
|















