1 / 12

3-кімн. кв., 69 м², 12/12 поверх

74 000 USD

Київ, Святоштнський.Новобілічі, МУдрака/Наумова/, 31А   •  На мапі

м-ро Академмістечко
Кімнат3 роздільні
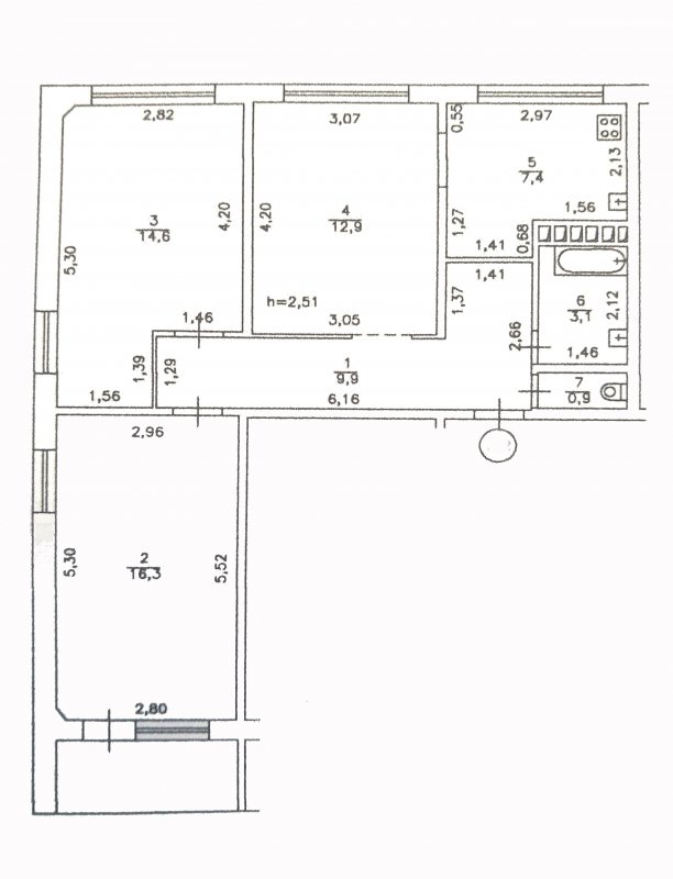
Площа69 м²
Житлова44 м²
Кухня8 м²
Поверх12 з 12

Продаж! Без комісії! Мудрака/Наумова/31А! М-ро Академмістечко!

Без комісії! Продається простора, затишна 3-кімнатна квартира на вул Олега Мудрака/ Генерала Наумова/, 31А у Святошинському р-ні (Новобіличі), метро Академмістечко 7 хв. на маршрутці. Дім панельний, 12-поверховий, у нормальному технічному стані. Квартира розташована на 12 поверсі, з вікон - мальовничі краєвиди, встановлена сигналізація, вікна металопластикові (двокамерні), замінені труби водопостачання, електропроводка, сантехніка. Два кондиціонери, лічильники на воду. Підлога - ламінат, висота стелі 2, 5 м, кімнати роздільні, просторі, санвузол роздільний, загальна площа 69 м2, житлова 44 м2 кухня 8 м2. Тихий двір, доброзичливі сусіди, поруч ліс, супермаркети, навчальні та медичні заклади. Ціна 74 000 Usd. Ксенія,.

БалконТак, 1
Вікна виходятьУ двір
Роздільний санвузолТак, 1
РемонтЄвро
ОпаленняЦентральне
Горяча водаБойлер
Тип об'єктуОкрема квартира
Тип проектуЦегляний
Id оголошення798170
Оголошення додано29.04.2026
Оголошення оновлено29.04.2026
Поділитися

Повідомлення

Якщо Ви не заповнили попереднє поле, то вкажіть місто, що цікавить Вас (той місто, в якому Ви хочете придбати або орендувати нерухомість):


74 000 $

Власник: Петренко Ксения Викторовна

Повідомлення

Якщо Ви не заповнили попереднє поле, то вкажіть місто, що цікавить Вас (той місто, в якому Ви хочете придбати або орендувати нерухомість):